
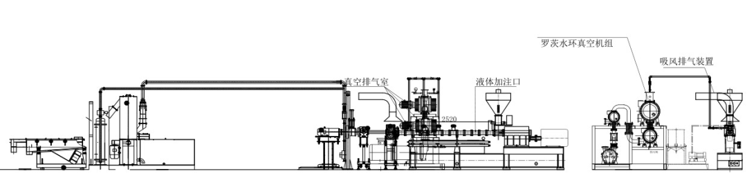
脫揮,防爆產品系列擠出機




POE脫揮設備客戶現場

POE脫揮成品料
平行雙螺桿擠出機是隨著高聚物反應后處理發展而發展起來的專用化工處理設備,具有高混煉性能、自潔性能、模組化組合能力、較高的能量輸出密度等優點,自從被德國拜爾公司的工程師發明以來被普遍應用于反應后處理、各種通用塑料及工程塑料的改性作業、電纜料行業、橡膠處理行業、食品飼料行業、醫療行業等,在國民經濟生產中處于基礎工業設備的重要位置,對我國的工業化發展和提高人民生活質量水平起著至關重要的作用;POE 是乙烯和辛烯的共聚物,其中共聚單體辛烯(C8H16)的含量為 20%-30%。分子結構中辛烯的存在破壞了乙烯的結晶,但是同時也賦予共聚物優良的透明性和良好的彈性。目前由于其聚合過程的催化劑專利保護,加上國外大型石化公司對中國的技術封鎖,國內 POE 國產化項目正處于開發中試和工業化階段;我司聯合國內國有石化工程公司,從小試、工業化中試,完成了 POE 聚合國產化關鍵技術的突破,為我國的技術發展貢獻應有的力量。
關鍵詞:平行雙螺擠出機;脫揮反應后處理;高真空脫揮;聚烯烴彈性體;防爆擠出
脫揮是物質傳遞的操作。揮發物組分在聚合物熔體基質中的分子必定擴散到液-氣界面,然后被排除收集。含有相對大量的揮發物的聚合物稀釋溶液在普通、相對低廉、單級或多級閃蒸罐中除去揮發成分。這種閃蒸罐借助于預熱器加熱溶液。通過蒸汽排除系統,在罐頂部排除汽化-沸騰溶液的蒸汽,借助齒輪泵在底部排除濃縮溶液。當粘度隨著揮發物含量降低而增大時,由于排料而一起的氣泡夾帶和再溶解,使閃蒸罐效率降低。降流脫揮裝置(falling strand devolatilizer)可以用來應對這一情況。
隨著揮發物含量進一步降低,形成非常濃的聚合物溶液,粘度增加至需要旋轉設備的水平,以便向前泵送溶液,使得表面更新和便于捕捉蒸汽泡,以及改進質量傳遞和熱傳遞。因此,通常需要利用帶有旋轉元件的設備進行脫揮作業,比如同向雙螺桿擠出機,配合高真空生成設備,將熔融態聚合物暴露在較低一定壓力水平上,使聚合物-揮發混合物體系過熱,因此能夠排除揮發物。Todd[1]等人和 Mehta[2]對各種商業可獲得的脫揮設備進行了比 較詳細的比較。
脫揮過程示意圖:

圖中, m 表示質量流率;ω 為揮發組分的質量分數。根據界面遷移通量可表達出揮發組分的質量流率 ωgmg,即界面法線方向單位面積的揮發組分流率:

Km ———質量傳遞系數;
Sm ———總界面面積;
S1 ———熔體表面的界面積;
Sbi ———氣泡的界面積。
由以上分析可知,傳質面積的大小直接影響脫揮的效果,能提供更大的傳質面積的組合將更有利于脫揮效率的提高。
POE 是乙烯和辛烯的共聚物,其中共聚單體辛烯(C8H16)的含量為 20%- 30%。分子結構中辛烯的存在破壞了乙烯的結晶,但是同時也賦予共聚物優良的透明性和良好的彈性。在常溫下乙烯的結晶作為物理交聯點,在高溫下乙烯解結晶使共聚物具有塑性。窄的分子量分布使 POE 具有較高的拉伸強度和抗沖擊性等。由于辛烯的支化作用,使得共聚物的熱敏性大大提高,大大增強了聚合物的可加工性。與 EPDM 和 EPR 相比,α-烯烴在共聚單體中的比重較小,大大減少了分子骨架上的叔氫原子,這使得 POE 的耐熱氧老化性能大大提高。

均相體系有益于乙烯和α-烯烴的共聚和共聚組成的調控,因此POE需要使用高溫連續溶液聚合,同時離不開耐高溫、高α-烯烴共聚能力的催化劑體系。所使用的聚合方法決定了共聚物組成呈無規分布,無法實現組分分布的有效調控,因此POE的強度隨著α-烯烴含量的增加而下降,材料的使用溫度也隨之降低。
如若在聚合過程中進行POE組成分布的有效調控,則可在保持聚合物任性的同時,實現材料強度的提成。
POE的溶液聚合方法包括Dow Chemical 技術, Exxonmobil 聚合工藝,SABIC 聚合工藝和其他聚合工藝等[3],本文主要探討溶液聚合后的脫揮處理課題,所以對聚合工藝不再做詳細地描述。
POE 典型的聚合路線和反應后處理脫揮造粒路線參考[4] :


國內在建或預計新投資項目列表:

本著謹慎嚴謹的科學態度,跟我司合作的國內某化工工程公司,其北京研究所提出的方案是在我司進行 模擬實驗再進一步投資購買中試實驗設備。并購從市場上購買了成品的 POE、異辛烯和正己烷作為溶劑,并購買了防爆失重稱作為加注媒體,整體實驗布置圖如圖所示:

(實驗布置圖)



北京研究所代表工程師收集了 10 組樣品進行測試,最終結果大部分落在 7-100ppm 之間,完全滿足實驗預期目的。
客戶設計的 POE 聚合路線為:反應 釜聚合+LIST 大容積脫揮機+雙螺 桿擠出機反應后處理脫揮+水下切 粒機造粒;全部電氣按防爆等級為 ExdIICT3 標準進行配置。

(POE 后處理脫揮中試項目布置圖)
針對反應后處理的擠出機配置特點:
1.因為聚合反應后會經過一級LIST大容量脫揮器將溶劑進行大部分的抽出,可以將體系的濃度降低到 1%左右,隨后進入雙螺桿進行第二級脫揮;
2.初步脫揮后的物料體系為高粘物料,需要擠出機配置高扭矩體系,提高整個物料體系的界 面更新率,有利于脫揮的進行;
3.對真空設備有較高的要求,需要提供持續大抽量、低真空度、 達到防爆要求且穩定可靠的真空機組,在實際運行時,根據 當地具體天氣情況的不同,真空度在 1000-2000Pa 之間,實踐證明,可以達到脫揮的要求, 當然,可以采用增加真空機組的方式繼續提高真空度,但這需要考慮整體項目投資的經濟性;
4.針對水下切粒機組,需要根據物料的特性,配置合適的流道、模板、溫控系統,以達到切粒的穩定和粒型的完美;
5.因為整套系統是放置在大化工廠區,必須要符合我國的安全要求,所以電控系統必須按照我國具體要求來配置。
6.對真空室及密閉系統必須采用特殊設計,這關系到最終脫揮的效果;

通過幾個月的準備調試,客戶最終打通了 POE 聚合的整個流程,成功完成 POE 聚合脫揮造粒中試項目。
4.1 雙螺桿擠出機以其獨特的機械性能,普遍適用于各種反應脫揮后處理的作業,具有物料輸送性能強,界面更新率高,組合更新變換多樣等優點;是高分子聚合加工不可或缺的優質設備;
4.2 通過小試中試設備的經驗積累,為大型脫揮造粒設備提供了有益的嘗試和指導;
4.3 國產擠出脫揮造粒機組在當前國內各新興聚合物國產化和創新化的大背景下必將在設計理念,產品質量和客戶友好程度方面得到更大的發展,為我國的國民經濟發展做出應有的貢獻。
查看更多
查看更多
查看更多
查看更多